1 / 10
as A3 3h+k+s+vh 62,5m2

Asunto Oy Joensuun Suunnistaja

Suunnistajantie 6, Joensuu

220 000,00€

Asunto

Asunnon numero A3
Huoneistotyyppi 3h+k+s+vh
Pinta-ala 62,5m2
Kerros 1/1
Sauna Kyllä
Parveke tai piha Kyllä
Talotyyppi Rivitalo
Varaustilanne Varattu

Hintatiedot

Myyntihinta 110 000,00€
Lainan osuus 110 000,00€
Velaton hinta 220 000,00€
Rahoitusvastike 0,00€
Hoitovastike 206,25€
Vesimaksu 20,00€/hlö/kk

Esittely

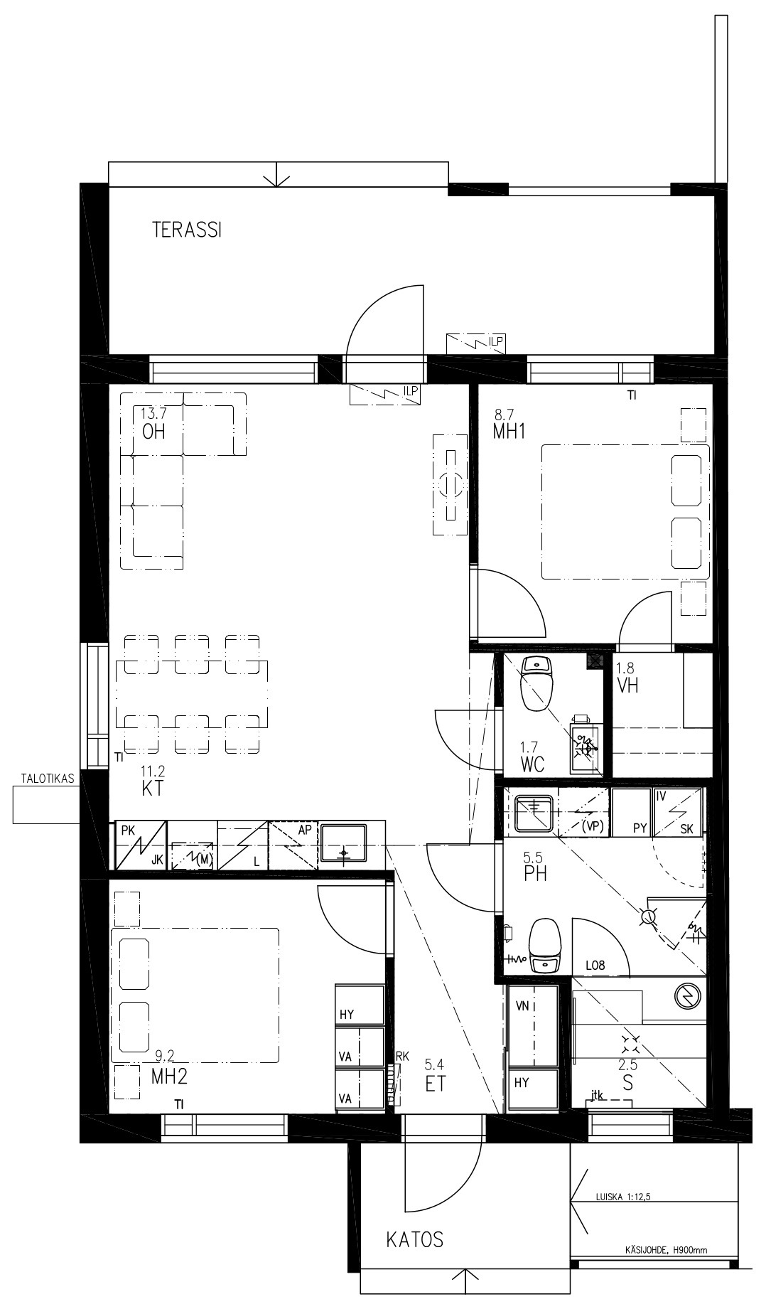
Toimiva rivitalon päätykolmio on varustettu viilennyksellä, vaatehuoneella ja koko asunnon levyisellä katetulla terassilla. Terassi on mahdollista myös lasittaa. Asunnossa toimiva kodinhoitotila ja kaksi vessaa. Valoisassa olohuoneessa lähes lattiaan ulottuva ikkuna ja ovi katetulle terassille. Saunassa lasiseinä, pilarikiuas ja kuituvalot. 

Uusi rivitalo tulossa omalle tontille Karhunmäkeen koulun ja uuden kaupan välimaastoon!  Maatyöt tontilla tehty ja rakentaminen jatkuu keväällä 2026. Tarjolla tasokasta ja taloudellista asumista valoisissa uusissa asunnoissa.  Asunnoilla avarat katetut terassit ja jokaisessa huoneistossa viilennys. Sijainti aivan uuden Salen näköetäisyydellä ja  myös muut lähipalvelut (koulu, päiväkoti, lounasravintola yms.) löytyvät kävelymatkan etäisyydellä.  Hyvät lenkkeilymaastot ja hoidettu hiihtolatu talvisin lähellä.

Asuntojen suunnittelussa on korkean asumisviihtyvyyden lisäksi otettu huomioon ympäristö- ja esteettömyysasiat arvojemme mukaisesti ja varauduttu tulevaisuuteen mm. varustamalla autopaikat sähköautojen latausvarauksella. Kohteella on oma tontti ja lämmitysmuotona edullinen ja ympäristöystävällinen kaukolämpö. Taloyhtiöön valmistuu lisäksi autokatos- ja tolppapaikkoja, joita on ostettavissa kohtuuhintaan erillisillä osakkeilla.

Arvioitu valmistuminen vuodenvaihteessa 2026-27. Suunnitelmia tarkennettu ulkosävyjen osalta modernimmaksi pellavan ja tumman yhdistelmäksi. Suurin osa asunnoista jo varattu, ota yhteyttä ja varaa nyt tuleva kotisi. Voit tehdä varauksen ilman kuluja myös suoraan nettisivuillamme taloykkoset.fi.  Tässä kohteessa voit vielä vaikuttaa materiaaleihin ja sävyihin. RS-kohde. Ennakkomarkkinointi.

Keittiön kuvaus

Voit vielä vaikuttaa keittiön materiaaleihin ja sävyihin.

Kylpyhuoneen kuvaus

Kylpyhuoneessa toinen wc, suihku ja kääntyvä suihkuseinä. Kylpyhuoneen yhteydessä kodinhoitotila, jossa allas, laskutilaa ja kaappitilaa.

WC-tilojen kuvaus

Kaksi vessaa, joista toinen kylpyhuoneen yhteydessä

Saunan kuvaus

Upea sauna, jossa lasiseinä, kuituvalot ja pilarikiuas.

Olohuoneen kuvaus

Valoisa olohuone, jossa isot ikkunat ja ovi katetulle terassille.

Makuuhuoneiden kuvaus

Kaksi makuuhuonetta joista toisessa hyvin kaappitilaa ja toisen yhteydessä vaatehuone.

Uuteen kotiin?

Haluaisin esitellä sinulle tätä kohdetta henkilökohtaisesti. Ota yhteyttä, niin sovitaan esittelyaika.

Ismo Leppänen
Ismo Leppänen
Sivustomme käyttää evästeitä käyttäjäkokemuksen parantamiseksi