1 / 23
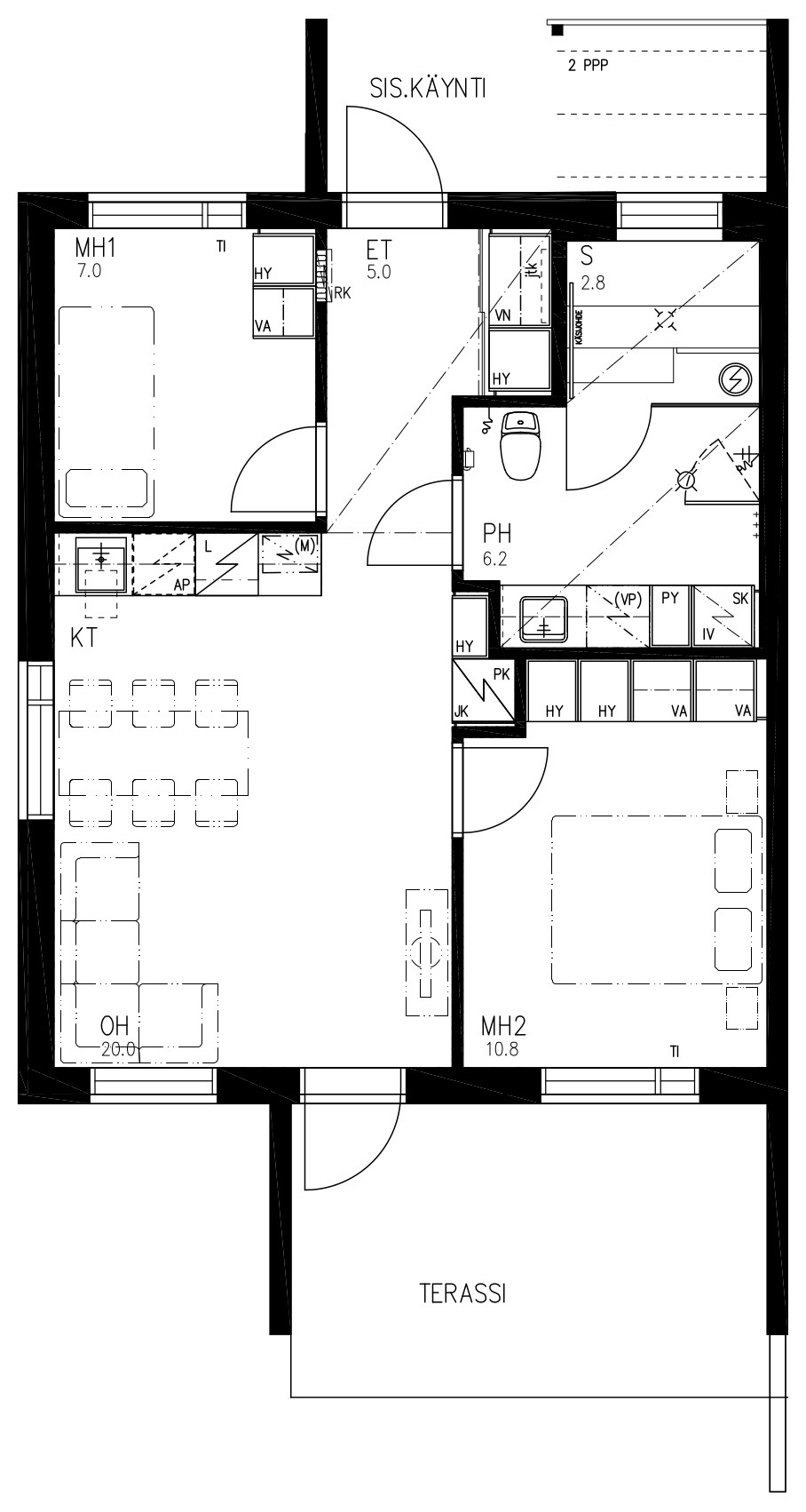
as A1 3h+k+s 54,5m2

As. Oy Lahden Kuusenlatvankatu 6

Kuusenlatvankatu 6, Lahti

209 000,00€

Asunto

Asunnon numero A1
Huoneistotyyppi 3h+k+s
Pinta-ala 54,5m2
Kerros 1/1
Sauna Kyllä
Parveke tai piha Kyllä
Talotyyppi Rivitalo
Varaustilanne Vapaa

Hintatiedot

Myyntihinta 209 000,00€
Lainan osuus 0,00€
Velaton hinta 209 000,00€
Rahoitusvastike 0,00€
Hoitovastike 316,10€
Vesimaksu 15,00€/hlö/kk

Esittely

Yksitasoinen rivitalon päätykolmio jäähdytyksellä ja lattialämmityksellä. Avara tupakeittiöratkaisu. Kaksi makuuhuonetta. Saunaosasto lasiseinällä ja kodinhoitotila. Valoisasta olohuoneesta käynti  tilavalle katetulle takaterassille puiston reunaan.  Laadukkaat sisustusmateriaalit ja varusteet. Ajattomat vaaleat sävyt. Tälle asunnolle kuuluu oma autokatospaikka, jossa kaapelointi valmiina myös sähköauton latauspisteelle.

Uudet rivitaloasunnot keskellä Karistoa ovat nyt valmiita! Pääset muuttamaan heti. Vain päätyasunnot enää vapaana.   Kohteeseen valmistuivat juuri nykyaikaisen valoisat yksitasoiset rivitaloasunnot. Asunnoilla avarat katetut takaterassit. Tontti rajoittuu kahdelta sivulta puistoon joten takapihan puolella rauhaisa metsämaisema, jossa ei naapureita lähellä.  Kariston monipuoliset palvelut lähellä.  Asunnoissa nykyaikaiset ja laadukkaat sisustusratkaisut, mm. Pukkilan laatat, Novartin kalusteet, Electroluxin kodinkoneet, Lektarin vinyylilankkulattiat, Vihtan lasiseinät, Oraksen hanat ja Idon wc:t. Asunnon hintaan kuuluvat myös oma häkkivarasto ja autokatospaikka. Turvallinen RS-kohde. Velaton taloyhtiö. Ympäristö- ja esteettömyysasiat huomioitu Taloykkösten arvojen mukaisesti. Ota yhteyttä!

Lisätiedot vesimaksusta

omat vesimittarit

Asuntoon kuuluu

Asunnon hintaan kuuluu autokatos, lämmin irtainvarasto, polkupyöräkatos ja tilava katettu terassi.

Keittiön kuvaus

Laadukas Novart-keittö, jossa Electroluxin kodinkoneet

Kylpyhuoneen kuvaus

Kylpyhuoneessa lasiseinä saunaan, suihku, kääntyvä suihkuseinä, wc, allas, pyykki- ja siivouskaapit sekä tilaa pesukoneille

Saunan kuvaus

Upea ikkunallinen sauna, jossa lasiseinä, pilarikiuas ja kuituvalot

Olohuoneen kuvaus

Olohuoneesta käynti katetulle terassille.

Makuuhuoneiden kuvaus

Kaksi makuuhuonetta, joissa hyvin kaappitilaa

Uuteen kotiin?

Haluaisin esitellä sinulle tätä kohdetta henkilökohtaisesti. Ota yhteyttä, niin sovitaan esittelyaika.

Ismo Leppänen
Ismo Leppänen
Sivustomme käyttää evästeitä käyttäjäkokemuksen parantamiseksi