1 / 17
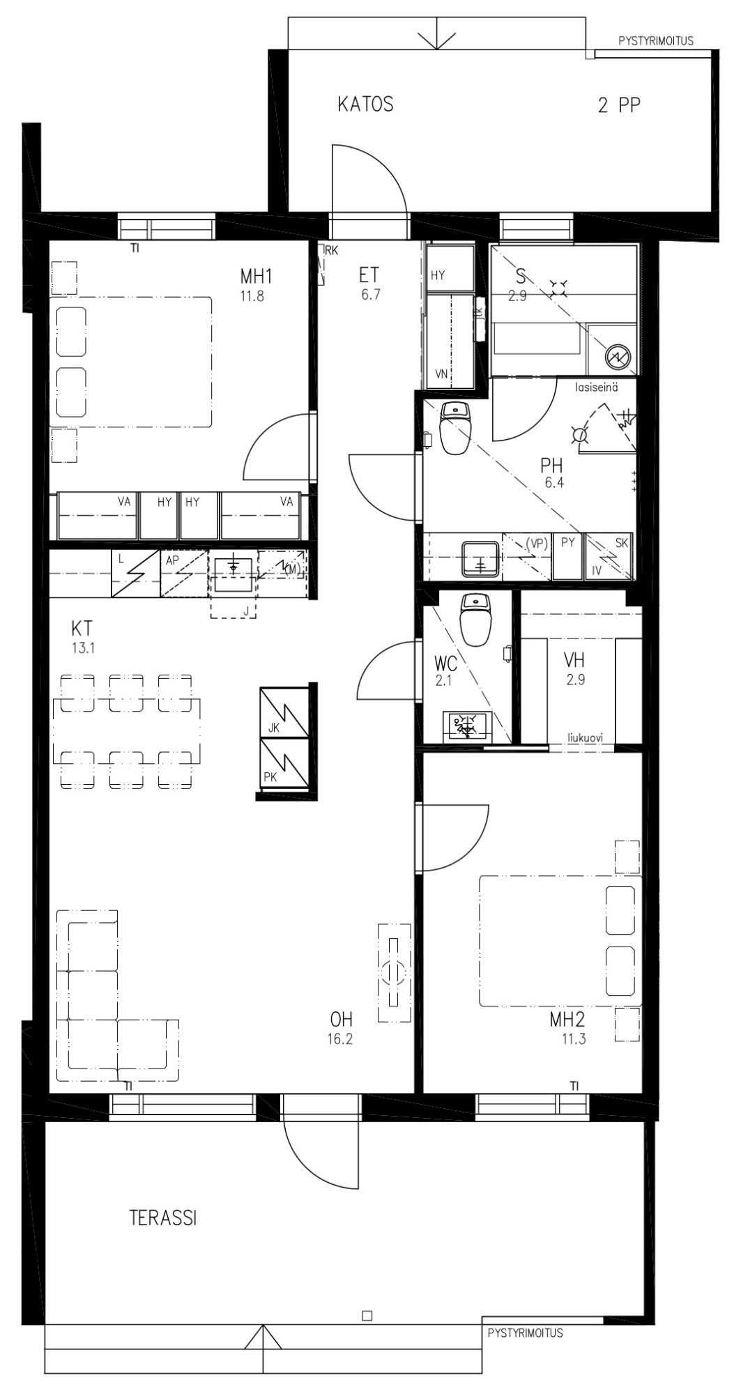
as B12 3h+k+s+vh 76,5m2

Murupellontie 49, Tuusula

Murupellontie 49, Tuusula

306 000,00€

Asunto

Asunnon numero B12
Huoneistotyyppi 3h+k+s+vh
Pinta-ala 76,5m2
Kerros 1/1
Sauna Kyllä
Parveke tai piha Kyllä
Talotyyppi Rivitalo
Varaustilanne Vapaa

Hintatiedot

Myyntihinta 153 000,00€
Lainan osuus 153 000,00€
Velaton hinta 306 000,00€
Rahoitusvastike 0,00€
Hoitovastike 382,50€
Vesimaksu 15,00€/hlö/kk

Kohteen seuraava esittelyaika: 20.10.2025 klo 17:15 - 17:45

Asunnot täysin valmiita ja muuttamaan pääsee heti. Enää tämä yksi ihana asunto vapaana! Esittelijänä Ann-Mari Piironen p. 050 471 2412

Esittely

Erittäin tilava yksitasoinen viilennetty rivitalokolmio on varustettu vaatehuoneella ja kahdella vessalla. Reilu huonekorkeus ja ihanaa asumisen väljyyttä kaikissa tiloissa. Asunnossa laadukas materiaali- ja varustetaso. Osa valokuvista on vastaavanlaisesta mallihuoneistosta eikä välttämättä vastaa sävyiltään ja yksityiskohdiltaan täysin tämän huoneiston toteutusta. Tässä huoneistossa B12 valkoinen keittiö ja marmorinsävyiset tasot. Kylpyhuoneen seinät vaalean marmorin sävyistä laattaa. Tervetuloa tutustumaan ja ihastumaan paikan päälle.

Yksitasoiset, viilennetyt A-energialuokan rivitaloasunnot maalämmöllä ovat valmiita! Muuttamaan pääsee heti. Varaa aika ja tule ihastumaan! Jokaisessa huoneistossa viilennys ilmalämpöpumpulla ja tilava katettu terassi.

Suunnittelussa on huomioitu monia ympäristöä ja käyttökustannuksia säästäviä ratkaisuja: 
1. A-energialuokan asuinrakennukset 
2. Lämmönlähteenä maalämpö 
3. Sähköautojen latausvalmius asuntokohtaisilla autopaikoilla 
4. Taloyhtiön sähkö tuotetaan osittain aurinkoenergialla 
​​​​​​​5. Taloyhtiön rahoitus OP:n vihreällä lainalla. 

Kohteessa yhteensä 14 huoneistoa. Kaikilla huoneistoilla omat autopaikat joissa sähköautojen latausvalmius asunnon omasta mittaroinnista. Laadukkaat sisustusmateriaalit, mm. Lektar-vinyylilankkulattiat, Novart-kalusteet ja nykyaikaiset Pukkilan laatoitukset. Viihtyisä Lahelan asuinalue kehittyy vahvasti. Samalle kadulle n. 700m päähän suunnitteilla uusi koulu ja päiväkoti. Lähikauppana toimii Alepa. Tämä on myös golfaajan unelmakohde, Tuusulan Golfklubille on vain 10 min matka.  Koti tästä kohteesta on turvallinen valinta: Kohde on RS-kohde. Lämmitysmuotona edullinen maalämpö ja vesikiertoinen lattialämmitys. Rakentajana vakavarainen Taloykköset Oy -yksilöllinen asuntorakentaja, joka on tunnettu mm. korkeasta asiakastyytyväisyydestä. Tontin vuokraajana Tuusulan kunta, hoitovastike kattaa tontin vuokran ja asukkailta ei peritä erillistä tonttivastiketta. 

Suurin osa asunnoista on jo myyty, myydyt asunnot eivät näy asuntolistauksessa. Ota yhteyttä, ja käydään tutustumassa!

Lisätiedot vesimaksusta

omat vesimittarit

Asuntoon kuuluu

Asunnolle kuuluu asuintilojen lisäksi tilava katettu terassi, oma autokatospaikka ja hyvät varastotilat.

Keittiön kuvaus

Avara ja toimiva avokeittiö. Keittiössä laadukkaat Novartin kalusteet ja Electroluxin kodinkoneet. Neutraalit vaaleat sävyt, valkoiset ovet ja vaalean marmorin sävyiset pöytätasot.

Kylpyhuoneen kuvaus

Kylpyhuoneessa lasiseinä saunaan, suihku, kääntyvä suihkuseinä, kodinhoitotila, jossa vesipiste, pöytä- ja laskutilaa, varaus pesutornille ja toinen wc. Kylpyhuoneessa laadukkaat Pukkilan laatoitukset, seinät marmorikuvioista Naxos Helen 30x60 -laattaa.

WC-tilojen kuvaus

2 vessaa, joista toinen kylpyhuoneen yhteydessä

Saunan kuvaus

Valoisa sauna, jossa pilarikiuas, kuituvalot ja lasiseinä.

Olohuoneen kuvaus

Valoisassa olohuoneessa isot ikkunat ja lasiaukollinen ovi josta käynti katetulle takaterassille.

Makuuhuoneiden kuvaus

Kaksi tilavaa makuuhuonetta, joista toisen yhteydessä vaatehuone ja toisessa vaatekaapit koko seinän leveydellä.

Näkymät

Takaterassi avautuu etelän suuntaan.

Asunnon virtuaaliesittely

Uuteen kotiin?

Haluaisin esitellä sinulle tätä kohdetta henkilökohtaisesti. Ota yhteyttä, niin sovitaan esittelyaika.

Ismo Leppänen
Ismo Leppänen
Sivustomme käyttää evästeitä käyttäjäkokemuksen parantamiseksi