1 / 7
as B 2h+k+s 55,0m2

Koulutie 28, Itä-Hakkila, Vantaa

Koulutie 28, Vantaa

269 000,00€

Asunto

Asunnon numero B
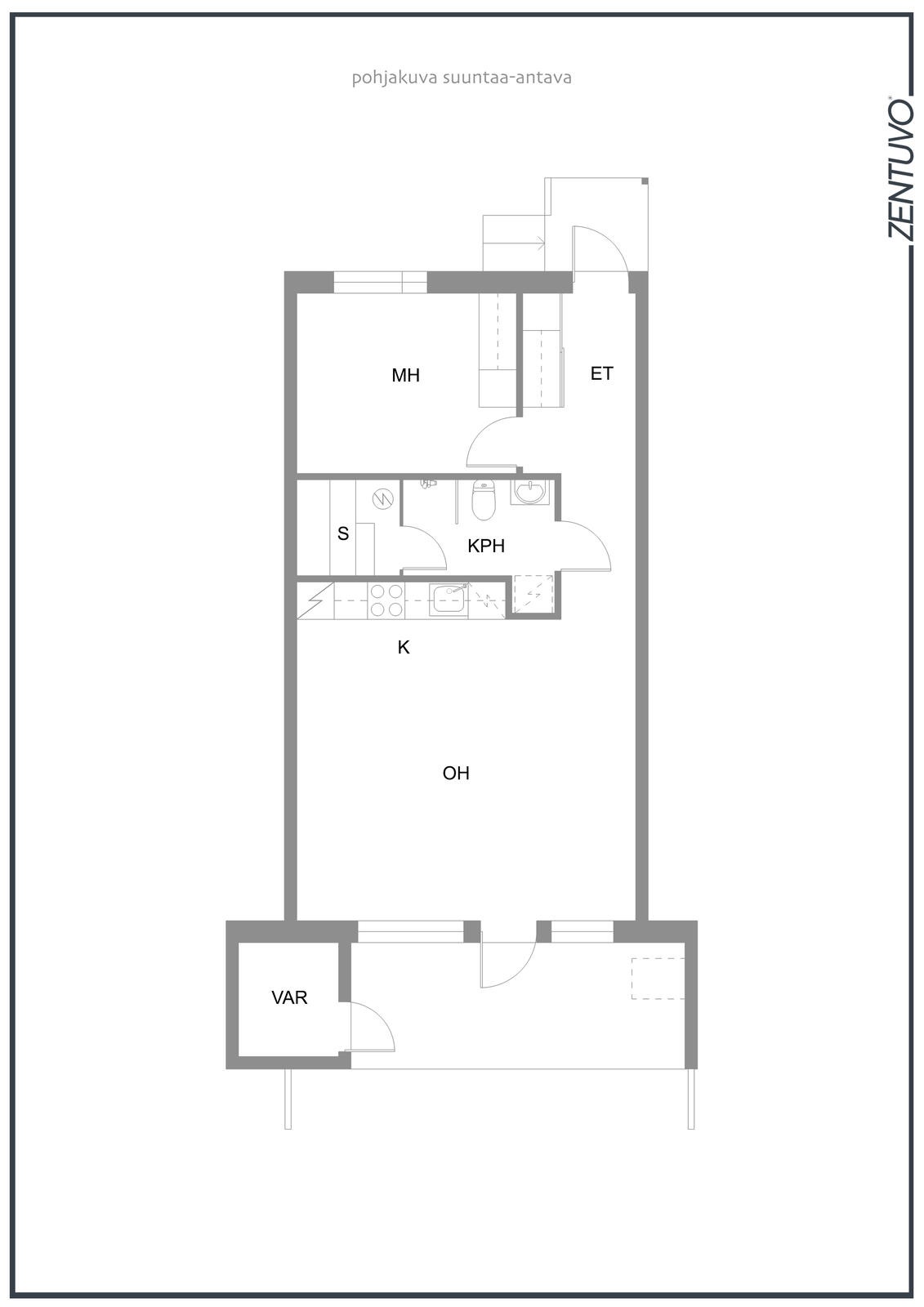
Huoneistotyyppi 2h+k+s
Pinta-ala 55,0m2
Kerros 1/1
Sauna Kyllä
Parveke tai piha Kyllä
Talotyyppi Rivitalo
Varaustilanne Vapaa

Hintatiedot

Myyntihinta 269 000,00€
Lainan osuus 0,00€
Velaton hinta 269 000,00€
Rahoitusvastike 0,00€
Hoitovastike 203,50€
Vesimaksu 25,00€/hlö/kk

Kohteen seuraava esittelyaika: 13.05.2026 klo 17:15 - 17:45

Esittely kohta valmistuvissa uusissa rivitalokodeissa. Tervetuloa tutustumaan!

Esittely

Tilava esteetön saunallinen kaksio omalla isolla takapihalla maalämpötalossa. Asunnossa korkea huonekorkeus ja isot ikkunat. Asuntoon suunniteltu nykyaikainen vaalea sisustus ja laadukkaat materiaalit. Asunnolle kuuluu oma piha-alue, varasto ja kaksi autopaikkaa, joista toinen katoksessa.

1-tasoinen valoisa rivitalo maalämmöllä omalla tontilla arvostetulla Itä-Hakkilan pientaloalueella valmistuu pian. Maalämpö, asuntokohtainen jäähdytys omalla ilmalämpöpumpulla, olohuoneen normaalia korkeampi huoneratkaisu (3100) sekä isot ikkunat länteen tekevät asunnoista avaran, raikkaan ja valoisan! Jokaiselle huoneistolle kuuluu kaksi autopaikkaa (autokatos- ja pihapaikka), lisäksi iso katettu (lasitusvaraus) terassi länteen ja huoneistokohtainen asunnon vieressä oleva varasto. Asuntoihin valittu laadukkaat materiaalit. Velaton RS-kohde ja sen toteuttaa vastuullinen rakentaja Taloykköset Oy. Kohde valmistuu kesä-heinäkuun vaihteessa 2026. Tällaisia koteja omalla tontilla Itä-Hakkilassa harvoin tarjolla. Osa asunnoista myyty, varaa omasi vielä kun ehdit.

Asuntoon kuuluu

Oma piha-alue, katettu terassi, varasto, autokatos ja pihapaikka kuuluvat asunnon hintaan.

Keittiön kuvaus

Avara keittiö avautuu suoraan valoisaan olohuoneeseen. Topi-keittiön kalusteet vaaleilla sävyillä.

Kylpyhuoneen kuvaus

Kylppärissä laadukkaat Pukkilan laatat, suihku, suihkuseinä, wc, allas, allaskaappi ja peilikaappi

Saunan kuvaus

Oma sauna

Olohuoneen kuvaus

Korkea olohuone, jossa uloskäynti ja korkeat ikkunat terassille ja omalle takapihalle ilta-auringon suuntaan. 

Makuuhuoneiden kuvaus

Tilava makuuhuone, jossa kiinteät kaapistot

Uuteen kotiin?

Haluaisin esitellä sinulle tätä kohdetta henkilökohtaisesti. Ota yhteyttä, niin sovitaan esittelyaika.

Ismo Leppänen
Ismo Leppänen
Sivustomme käyttää evästeitä käyttäjäkokemuksen parantamiseksi