1 / 6
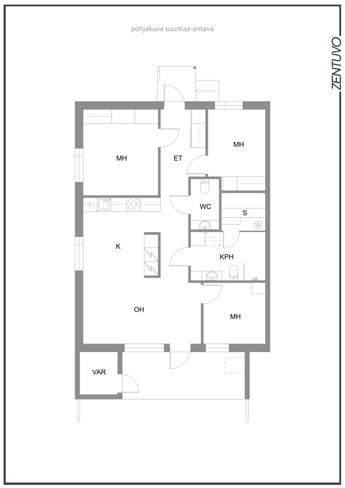
as E 4h+k+s 79,5m2

Koulutie 28, Itä-Hakkila, Vantaa

Koulutie 28, Vantaa

375 000,00€

Asunto

Asunnon numero E
Huoneistotyyppi 4h+k+s
Pinta-ala 79,5m2
Kerros 1/1
Sauna Kyllä
Parveke tai piha Kyllä
Talotyyppi Rivitalo
Varaustilanne Varattu

Hintatiedot

Myyntihinta 375 000,00€
Lainan osuus 0,00€
Velaton hinta 375 000,00€
Rahoitusvastike 0,00€
Hoitovastike 294,15€
Vesimaksu 25,00€/hlö/kk

Esittely

Valoisa päätynelikko omalla isolla takapihalla maalämpötalossa. Asunnossa korkea huonekorkeus ja isot ikkunat. Asunnolle kuuluu oma varasto ja kaksi autopaikkaa, joista toinen katoksessa.

Rakentamisen aloituspäätös tehty. Rakennamme nyt 1-tasoisen valoisan rivitalon maalämmöllä omalle tontille arvostetulla Itä-Hakkilan pientaloalueella. Asuntokohtainen jäähdytys ja olohuoneen normaalia korkeampi huoneratkaisu (3100) sekä isot ikkunat länteen tekevät asunnosta avaran, raikkaan ja valoisan! Jokaiselle huoneistolle kuuluu kaksi autopaikkaa (autokatos- ja pihapaikka), lisäksi iso katettu (lasitusvaraus) terassi länteen ja huoneistokohtainen asunnon vieressä oleva varasto. Materiaaleihin pääsee vaikuttamaan. Velaton RS-kohde ja sen toteuttaa vastuullinen rakentaja Taloykköset Oy. Kohde valmistuu kesällä 2026. Nyt ennakkovaraajan etu: Varaa asunto heti  suoraan nettisivuiltamme ja vuoden 2026 hoitovastikkeet maksaa rakentaja! Ennakkovaraajan etu voimassa 31.10.2025 saakka.  Myyntiä hoitaa kanssamme vankalla kokemuksella myös Habita LKV, Harry Heikkinen p. 0504200300 ja Julia Ylönen p. 0504200307.

Uuteen kotiin?

Haluaisin esitellä sinulle tätä kohdetta henkilökohtaisesti. Ota yhteyttä, niin sovitaan esittelyaika.

Ismo Leppänen
Ismo Leppänen
Sivustomme käyttää evästeitä käyttäjäkokemuksen parantamiseksi