1 / 10
as B2 3h+k+s+vh 64,0m2

Asunto Oy Ylöjärven Mansikkarinne

Mansikkatie 1, Ylöjärvi

259 000,00€

Asunto

Asunnon numero B2
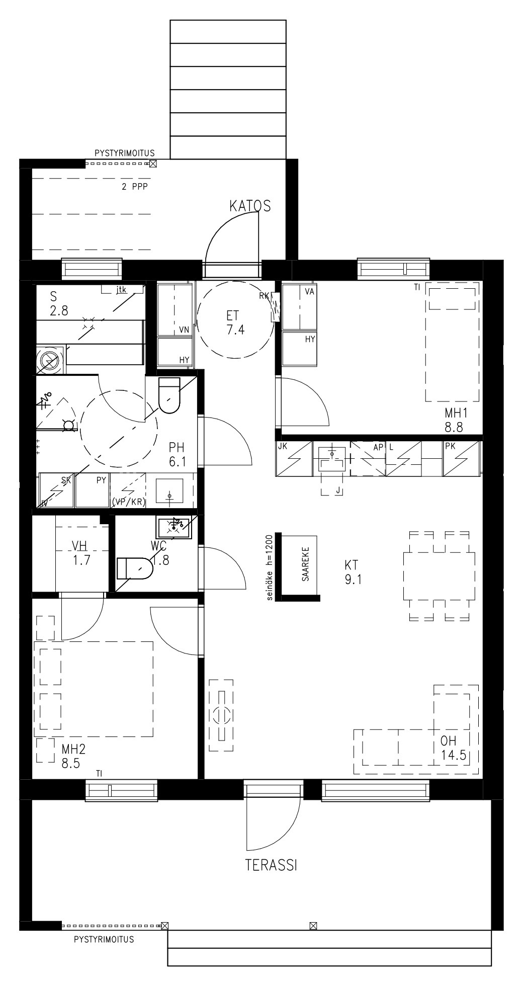
Huoneistotyyppi 3h+k+s+vh
Pinta-ala 64,0m2
Kerros 1/1
Sauna Kyllä
Parveke tai piha Kyllä
Talotyyppi Rivitalo
Varaustilanne Vapaa

Hintatiedot

Myyntihinta 129 500,00€
Lainan osuus 129 500,00€
Velaton hinta 259 000,00€
Rahoitusvastike 0,00€
Hoitovastike 256,00€
Vesimaksu 22,00€/hlö/kk

Esittely

Toimiva kolmio maalämmöllä. Asunnossa valoisat huoneet, kaksi vessaa ja tilava katettu terassi. Lisäksi hyvät säilytystilat ja oma autokatospaikka sisältyy asunnon hintaan.

Tulossa viilennettäviä yksitasoisia A-energialuokan asuntoja maalämmöllä Asuntilaan. Tässä A-energialuokan talossa on edullinen ja ympäristöystävällinen maalämpö ja vesikiertoinen lattialämmitys. Kaikilla asunnoilla asuntokohtainen viilennys ilmalämpöpumpulla. 

Lähellä Asuntilan palvelut, kuten K-market, uimaranta ja Asuntilan koulu. Rakennukset sovitetaan luonnollisesti kauniille rinnetontille. Takapihat avautuvat etelän suuntaan. Jokaisella huoneistolla on tilava katettu takaterassi, autokatos, hyvät varastotilat ja vain yksi seinänaapuri. Unelmakohde myös sinulle, joka omistat pienen lemmikin, sillä takapihat ovat aidattavissa. Turvallinen Ylöjärven kaupungin vuokratontti. Ei erillistä tontinvuokravastiketta.

Rakentajana Taloykköset -yksilöllinen asuntorakentaja, joka on tunnettu mm. korkeasta asiakastyytyväisyydestä. Voit vielä vaikuttaa sisustusmateriaaleihin ja sävyihin. Taloyhtiössä yhteensä 6 asuntoa. Asunnot valmistuvat vuonna 2027. Voit ennakkovarata asunnon ilman kuluja suoraan nettisivuiltamme.  Turvallinen vaihtoehto, kysy lisätietoja. Valokuvat ja havainnekuvat voivat poiketa lopullisesta toteutuksesta. Ennakkomarkkinointi.

Lisätiedot vesimaksusta

omat vesimittarit

Keittiön kuvaus

Valoisa avokeittiö, jossa tilaa isollekin ruokapöydälle

Kylpyhuoneen kuvaus

Kylpyhuoneessa suihku, kääntyvä suihkuseinä, lasiseinä saunaan ja toinen wc

WC-tilojen kuvaus

2 vessaa

Saunan kuvaus

Upea sauna, jossa kuituvalot, pilarikiuas ja lasiseinä

Olohuoneen kuvaus

Olohuoneessa suuret ikkunat ja ovi katetulle takaterassille.

Makuuhuoneiden kuvaus

Kaksi makuuhuonetta, joista toisen yhteydessä vaatehuone

Asunnon virtuaaliesittely

Uuteen kotiin?

Haluaisin esitellä sinulle tätä kohdetta henkilökohtaisesti. Ota yhteyttä, niin sovitaan esittelyaika.

Ismo Leppänen
Ismo Leppänen
Sivustomme käyttää evästeitä käyttäjäkokemuksen parantamiseksi