1 / 5
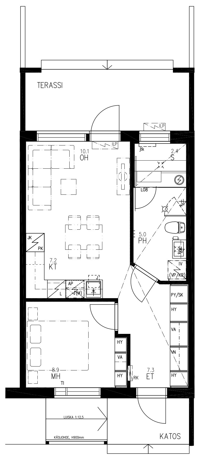
as B5 2h+k+s 42,5m2

Asunto Oy Joensuun Suunnistaja

Suunnistajantie 6, Joensuu

159 000,00€

Asunto

Asunnon numero B5
Huoneistotyyppi 2h+k+s
Pinta-ala 42,5m2
Kerros 1/1
Sauna Kyllä
Parveke tai piha Kyllä
Talotyyppi Rivitalo
Varaustilanne Varattu

Hintatiedot

Myyntihinta 79 500,00€
Lainan osuus 79 500,00€
Velaton hinta 159 000,00€
Rahoitusvastike 0,00€
Hoitovastike 140,25€
Vesimaksu 20,00€/hlö/kk

Esittely

Toimiva saunallinen rivitalokaksio on varustettu viilennyksellä ja koko asunnon levyisellä katetulla terassilla. Terassi on mahdollista myös lasittaa.  Valoisassa olohuoneessa lähes lattiaan ulottuva ikkuna ja ovi katetulle terassille. Saunassa lasiseinä, pilarikiuas ja kuituvalot. 

Uusi rivitalo tulossa omalle tontille Karhunmäkeen koulun ja uuden kaupan välimaastoon!  Maatyöt tontilla tehty ja rakentaminen jatkuu keväällä 2026. Tarjolla tasokasta ja taloudellista asumista valoisissa uusissa asunnoissa.  Asunnoilla avarat katetut terassit ja jokaisessa huoneistossa viilennys. Sijainti aivan uuden Salen näköetäisyydellä ja  myös muut lähipalvelut (koulu, päiväkoti, lounasravintola yms.) löytyvät kävelymatkan etäisyydellä.  Hyvät lenkkeilymaastot ja hoidettu hiihtolatu talvisin lähellä.

Asuntojen suunnittelussa on korkean asumisviihtyvyyden lisäksi otettu huomioon ympäristö- ja esteettömyysasiat arvojemme mukaisesti ja varauduttu tulevaisuuteen mm. varustamalla autopaikat sähköautojen latausvarauksella. Kohteella on oma tontti ja lämmitysmuotona edullinen ja ympäristöystävällinen kaukolämpö. Taloyhtiöön valmistuu lisäksi autokatos- ja tolppapaikkoja, joita on ostettavissa kohtuuhintaan erillisillä osakkeilla.

Arvioitu valmistuminen vuodenvaihteessa 2026-27. Suunnitelmia tarkennettu ulkosävyjen osalta modernimmaksi pellavan ja tumman yhdistelmäksi. Suurin osa asunnoista jo varattu, ota yhteyttä ja varaa nyt tuleva kotisi. Voit tehdä varauksen ilman kuluja myös suoraan nettisivuillamme taloykkoset.fi.  Tässä kohteessa voit vielä vaikuttaa materiaaleihin ja sävyihin. RS-kohde. Ennakkomarkkinointi.

Keittiön kuvaus

L-mallin keittiö. Voit vielä vaikuttaa keittiön materiaaleihin ja sävyihin.

Kylpyhuoneen kuvaus

Kylpyhuoneessa suihku ja kääntyvä suihkuseinä. Kylpyhuoneen yhteydessä kodinhoitotila, jossa allas, varaus pesukoneelle ja kaappitilaa.

Saunan kuvaus

Upea ikkunallinen sauna, jossa lasiseinä, kuituvalot ja pilarikiuas.

Olohuoneen kuvaus

Valoisa olohuone, jossa iso ikkuna ja ovi katetulle terassille.

Makuuhuoneiden kuvaus

Kaksi makuuhuonetta joista toisessa hyvin kaappitilaa ja toisen yhteydessä vaatehuone.

Uuteen kotiin?

Haluaisin esitellä sinulle tätä kohdetta henkilökohtaisesti. Ota yhteyttä, niin sovitaan esittelyaika.

Ismo Leppänen
Ismo Leppänen
Sivustomme käyttää evästeitä käyttäjäkokemuksen parantamiseksi