1 / 6
as C 3h+k+s 63,5m2

Koulutie 28, Itä-Hakkila, Vantaa

Koulutie 28, Vantaa

309 000,00€

Asunto

Asunnon numero C
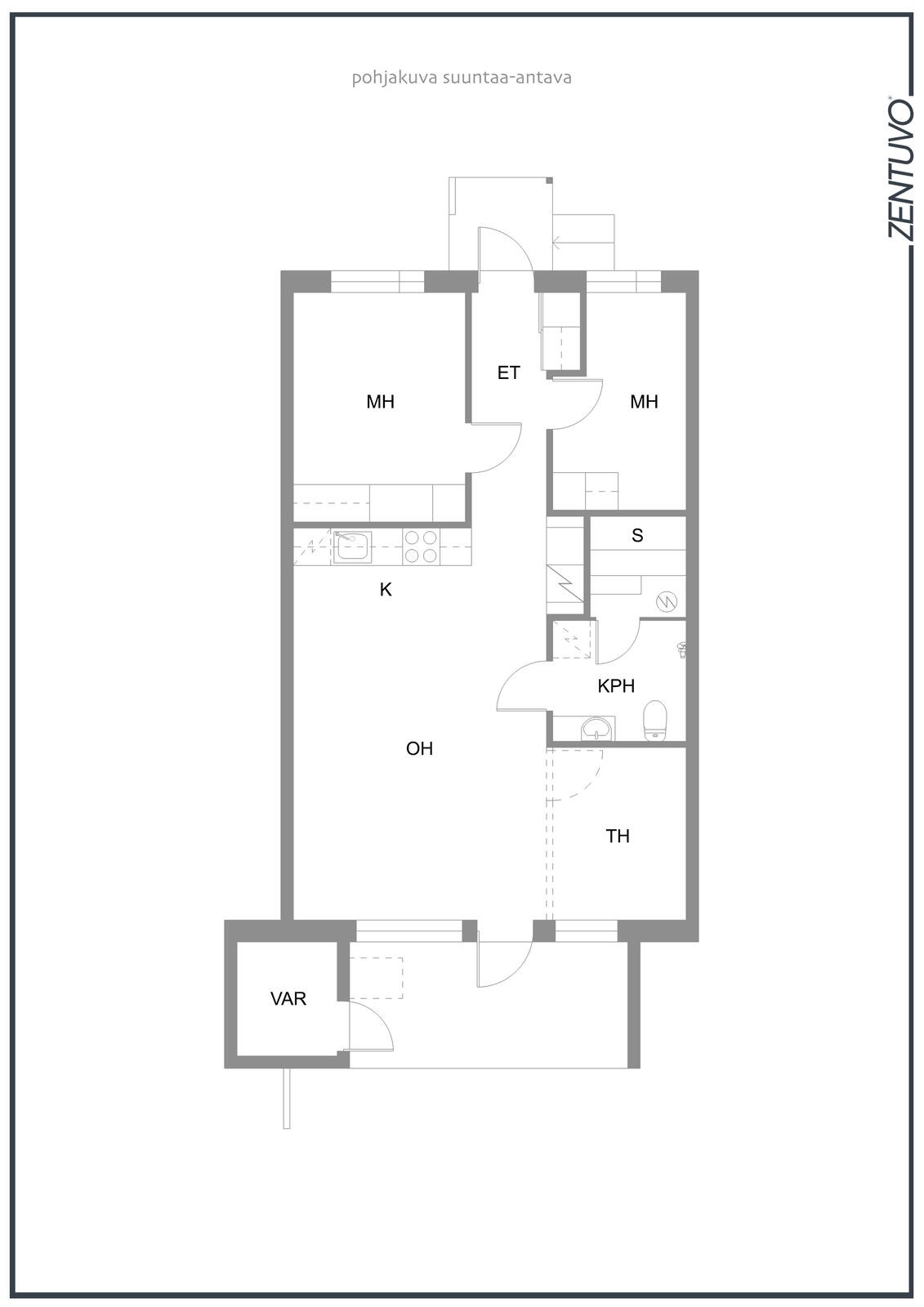
Huoneistotyyppi 3h+k+s
Pinta-ala 63,5m2
Kerros 1/1
Sauna Kyllä
Parveke tai piha Kyllä
Talotyyppi Rivitalo
Varaustilanne Vapaa

Hintatiedot

Myyntihinta 309 000,00€
Lainan osuus 0,00€
Velaton hinta 309 000,00€
Rahoitusvastike 0,00€
Hoitovastike 234,95€
Vesimaksu 25,00€/hlö/kk

Kohteen seuraava esittelyaika: 13.05.2026 klo 17:15 - 17:45

Esittely kohta valmistuvissa uusissa rivitalokodeissa. Tervetuloa tutustumaan!

Esittely

Toimiva yksitasoinen kolmio omalla isolla takapihalla maalämpötalossa. Asunnossa korkea huonekorkeus ja isot ikkunat. Valoisat raikkaan vaaleat sävyt. Neliöt tehokkaasti käytössä hyvän suunnittelun johdosta. Olohuoneesta on tarvittaessa eroitettavissa väliseinällä vielä kolmaskin makuuhuone esim. työhuoneeksi. Asunnolle kuuluu oma varasto ja kaksi autopaikkaa, joista toinen katoksessa.

1-tasoinen valoisa rivitalo maalämmöllä omalla tontilla arvostetulla Itä-Hakkilan pientaloalueella valmistuu pian. Maalämpö, asuntokohtainen jäähdytys omalla ilmalämpöpumpulla, olohuoneen normaalia korkeampi huoneratkaisu (3100) sekä isot ikkunat länteen tekevät asunnoista avaran, raikkaan ja valoisan! Jokaiselle huoneistolle kuuluu kaksi autopaikkaa (autokatos- ja pihapaikka), lisäksi iso katettu (lasitusvaraus) terassi länteen ja huoneistokohtainen asunnon vieressä oleva varasto. Asuntoihin valittu laadukkaat materiaalit. Velaton RS-kohde ja sen toteuttaa vastuullinen rakentaja Taloykköset Oy. Kohde valmistuu kesä-heinäkuun vaihteessa 2026. Tällaisia koteja omalla tontilla Itä-Hakkilassa harvoin tarjolla. Osa asunnoista myyty, varaa omasi vielä kun ehdit.

Keittiön kuvaus

Avara keittiö avautuu suoraan valoisaan olohuoneeseen. Topi-keittiön kalusteet vaaleilla sävyillä ja kullan värisillä vetimillä.

Kylpyhuoneen kuvaus

Kylpyhuoneessa laadukkaat Pukkilan laatat vaaleilla sävyillä. Saunan ja kylpyhuoneen välillä lasiseinä. Kylpyhuoneen varusteina suihku, wc, allas, allaskaappi, peilikaappi, pyykkikaappi ja tilavaraus pesukoneelle.

Saunan kuvaus

Oma sauna tervaleppää. Saunassa pilarikiuas, kuituvalot ja lasiseinä

Olohuoneen kuvaus

Erittäin valoisa olohuone, jossa huonekorkeus jopa 3,1m. Olohuoneessa isot ikkunat ja käynti katetulle terassille ja omalle piha-alueelle. Olohuoneesta mahdollisuus eroittaa pieni työhuone väliseinällä.

Makuuhuoneiden kuvaus

Kaksi makuuhuonetta, joissa komerot.

Uuteen kotiin?

Haluaisin esitellä sinulle tätä kohdetta henkilökohtaisesti. Ota yhteyttä, niin sovitaan esittelyaika.

Ismo Leppänen
Ismo Leppänen
Sivustomme käyttää evästeitä käyttäjäkokemuksen parantamiseksi