1 / 7
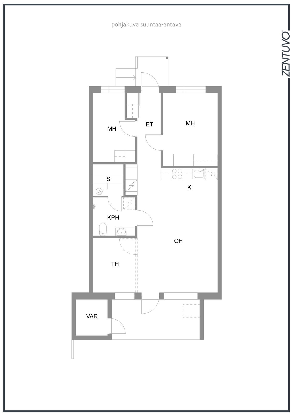
as D 3h+k+s 63,5m2

Koulutie 28, Itä-Hakkila, Vantaa

Koulutie 28, Vantaa

309 000,00€

Asunto

Asunnon numero D
Huoneistotyyppi 3h+k+s
Pinta-ala 63,5m2
Kerros 1/1
Sauna Kyllä
Parveke tai piha Kyllä
Talotyyppi Rivitalo
Varaustilanne Vapaa

Hintatiedot

Myyntihinta 309 000,00€
Lainan osuus 0,00€
Velaton hinta 309 000,00€
Rahoitusvastike 0,00€
Hoitovastike 234,95€
Vesimaksu 25,00€/hlö/kk

Esittely

Toimiva yksitasoinen kolmio omalla isolla takapihalla maalämpötalossa. Asunnossa korkea huonekorkeus ja isot ikkunat. Neliöt tehokkaasti käytössä hyvän suunnittelun johdosta. Olohuoneesta on tarvittaessa eroitettavissa väliseinällä kolmas makuuhuone esim. työhuoneeksi. Asunnolle kuuluu oma varasto ja kaksi autopaikkaa, joista toinen katoksessa.

1-tasoinen valoisa rivitalo maalämmöllä omalla tontilla arvostetulla Itä-Hakkilan pientaloalueella valmistuu pian. Maalämpö, asuntokohtainen jäähdytys omalla ilmalämpöpumpulla, olohuoneen normaalia korkeampi huoneratkaisu (3100) sekä isot ikkunat länteen tekevät asunnoista avaran, raikkaan ja valoisan! Jokaiselle huoneistolle kuuluu kaksi autopaikkaa (autokatos- ja pihapaikka), lisäksi iso katettu (lasitusvaraus) terassi länteen ja huoneistokohtainen asunnon vieressä oleva varasto. Materiaaleihin pääsee vaikuttamaan. Velaton RS-kohde ja sen toteuttaa vastuullinen rakentaja Taloykköset Oy. Kohde valmistuu kesä-heinäkuun vaihteessa 2026. Tällaisia koteja omalla tontilla Itä-Hakkilassa harvoin tarjolla. Osa asunnoista myyty, varaa omasi vielä kun ehdit.

Keittiön kuvaus

Avara keittiö avautuu suoraan valoisaan olohuoneeseen. Topi-keittiön kalusteet vaalean tammen sävyllä ja mustilla tehosteilla.

Kylpyhuoneen kuvaus

Kylpyhuoneessa laadukkaat Pukkilan laatat. Sävymaailma rauhallinen beige mustilla tehosteilla. Saunan ja kylpyhuoneen välillä lasiseinä. Kylpyhuoneen varusteina suihku, wc, allas, allaskaappi, peilikaappi, pyykkikaappi ja tilavaraus pesukoneelle.

Saunan kuvaus

Saunan sisustus tervaleppää, saunassa kuituvalot, pilarikiuas ja lasiseinä

Olohuoneen kuvaus

Avara ja valoisa olohuone, jossa huonekorkeus jopa 3,1m. Olohuoneessa isot ikkunat ja käynti katetulle terassille ja omalle piha-alueelle. Olohuoneesta mahdollisuus eroittaa pieni työhuone väliseinällä.

Uuteen kotiin?

Haluaisin esitellä sinulle tätä kohdetta henkilökohtaisesti. Ota yhteyttä, niin sovitaan esittelyaika.

Ismo Leppänen
Ismo Leppänen
Sivustomme käyttää evästeitä käyttäjäkokemuksen parantamiseksi